We are a team of architects with innovative design ideas combined with an intense client service and over 30 years of experience.

We provide high quality personal service to all our clients regardless of the size and nature of the project.

Our core practice areas :

Premises Licence

  • We provide a full service for all licensable activities relating to the Licensing Act 2003.
  • Preparing applications with premises plans for Premises Licence or Club Licence for the following licensable activities:
    • any sale of alcohol by retail the supply of alcohol in a members club regulated entertainment, such as films, plays, indoor sports, boxing or wrestling, live or recorded music or dancing, late night refreshment (hot food or hot drink between 11.00pm and 5.00am the next day)
  • Premises Licence Full and Minor variation applications
  • Premises Licence transfer and variation of Designated Premises Supervisor (DPS)
  • Temporary Event Notice (TEN) applications.
contact us for more information

Architecture and Engineering

  • All areas of Architectural design
  • Planning Permissions and Appeals
  • Construction : Alterations, Building Regulation, Restoration and Decorating
  • Estimate and Specification preparations
contact us for more information

Business Administration

  • Business Planning
  • Grant and Loan Applications
contact us for more information

and more....

  • For further details please do not hesitate to get in touch
contact us for more information

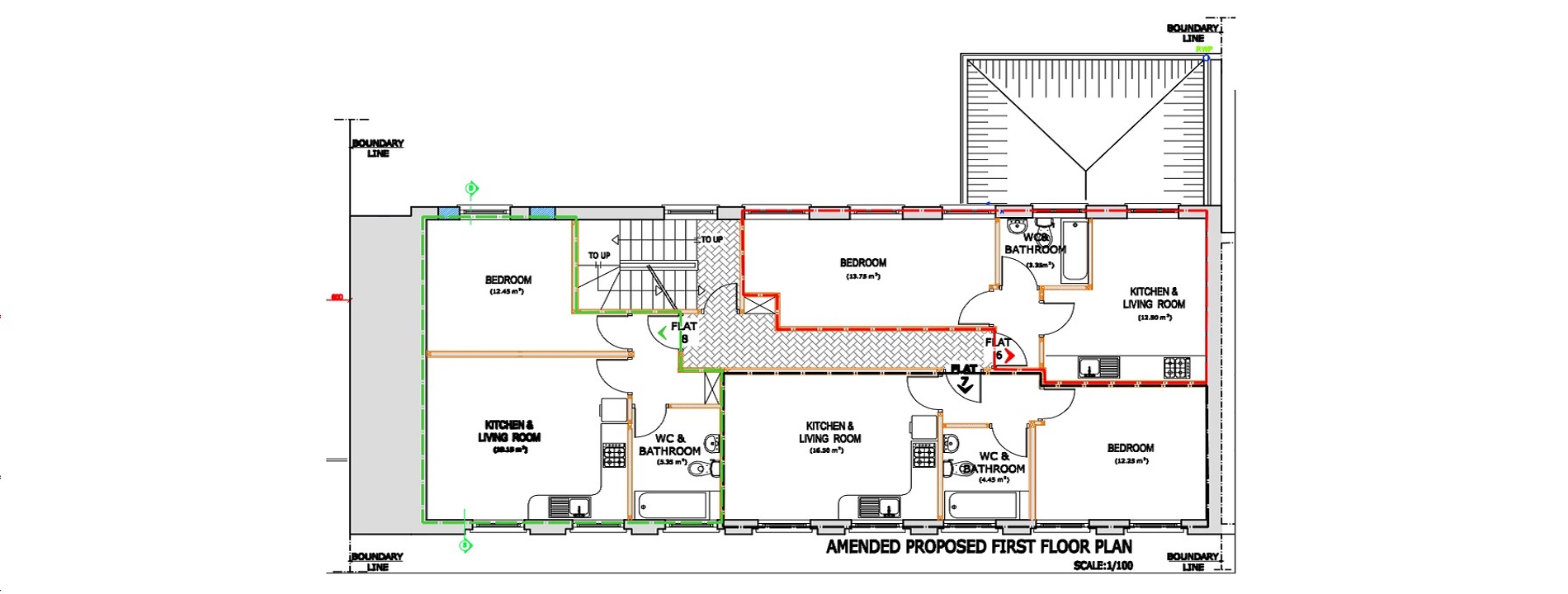
Some of our Recent Projects and Site Notices

MANSELTON PRIMARY SCHOOL, SWANSEA SA5 9PA

Site Notice
Manselton Primary School Swansea SA5 9PA-01.pdf
Manselton Primary School Swansea SA5 9PA-02.pdf
Manselton Primary School Swansea SA5 9PA-03.pdf
Manselton Primary School Swansea SA5 9PA-04.pdf
Manselton Primary School Swansea SA5 9PA-05.pdf
Manselton Primary School Swansea SA5 9PA-06.pdf
Manselton Primary School Swansea SA5 9PA-07.pdf
Manselton Primary School Swansea SA5 9PA-08.pdf
Manselton Primary School Swansea SA5 9PA-09.pdf
Manselton Primary School Swansea SA5 9PA-10.pdf
Manselton Primary School Swansea SA5 9PA-10A.pdf
Manselton Primary School Swansea SA5 9PA-10B.pdf
Manselton Primary School Swansea SA5 9PA-11.pdf
Manselton Primary School Swansea SA5 9PA-12.pdf
Manselton Primary School Swansea SA5 9PA-13.pdf
Manselton Primary School Swansea SA5 9PA-14.pdf
Manselton Primary School Swansea SA5 9PA-15.pdf
Manselton Primary School Swansea SA5 9PA-16.pdf
Manselton Primary School Swansea SA5 9PA-17.pdf
Manselton Primary School Swansea SA5 9PA-18.pdf
Manselton Primary School Swansea SA5 9PA-19.pdf
Manselton Primary School Swansea SA5 9PA-20.pdf
Manselton Primary School Swansea SA5 9PA-21.pdf
Manselton Primary School Swansea SA5 9PA-22.pdf
Manselton Primary School Swansea SA5 9PA-23.pdf
Manselton Primary School Swansea SA5 9PA-24.pdf
Manselton Primary School Swansea SA5 9PA-25.pdf
Manselton Primary School Swansea SA5 9PA-26.pdf
Manselton Primary School Swansea SA5 9PA-27.pdf
Manselton Primary School Swansea SA5 9PA-28.pdf
Manselton Primary School Swansea SA5 9PA-29.pdf
Manselton Primary School Swansea SA5 9PA-30.pdf
Manselton Primary School Swansea SA5 9PA-31.pdf
Manselton Primary School Swansea SA5 9PA-32.pdf
Manselton Primary School Swansea SA5 9PA-33.pdf
Manselton Primary School Swansea SA5 9PA-34.pdf
Manselton Primary School Swansea SA5 9PA-35.pdf
Manselton Primary School Swansea SA5 9PA-36.pdf
Manselton Primary School Swansea SA5 9PA-37.pdf
Manselton Primary School Swansea SA5 9PA-38.pdf
Manselton Primary School Swansea SA5 9PA-39.pdf
Manselton Primary School Swansea SA5 9PA-40.pdf
Manselton Primary School Swansea SA5 9PA-41.pdf
Manselton Primary School Swansea SA5 9PA-42.pdf
Manselton Primary School Swansea SA5 9PA-43.pdf
Manselton Primary School Swansea SA5 9PA-44.pdf
Manselton Primary School Swansea SA5 9PA-45.pdf
Manselton Primary School Swansea SA5 9PA-46.pdf
Manselton Primary School Swansea SA5 9PA-47.pdf
 

ABERDARE GIRLS SCHOOL, GADLYS ROAD, ABERDARE CF44 8AA